24小时空降联系方式,全国高端经纪人,全国高端模特微信群,叫小妹电话

洁净棚加工图|制作图

洁净棚加工图|洁净棚制作图:

广州梓净主营洁净棚空气净化设备产品,本文展示一组本公司的洁净棚加工图,洁净棚制作图供大家参考、学习使用。

在展示洁净棚加工图|洁净棚制作图之前,先了解一下洁净棚的相关产品、知识。

洁净棚产品
洁净棚产品【正在使用中的洁净棚】

洁净棚工作原理:

风机从FFU顶部将空气吸入,经初效过滤器,洁净棚高效过滤器过滤,过滤后的洁净空气在整个出风面以0.45m/s±20%的风速匀速送出到洁净棚内。使洁净空气气流呈垂直单向流,从而保证了工作区内所要求的洁净度。

“梓净”牌洁净棚配置:

1.洁净棚顶部满布FFU(FFU可参考洁净棚FFU);

2.框架:以工业铝材(或不锈钢方通、铁方通喷塑)作为框架稳固、美观、不生锈、不产尘;

3.防静电垂帘:四周围用防静电垂帘(或钢化玻璃),防静电效果好、透明度高、网格清晰、柔韧度好、不变形、不易老化;

4.风机滤网机组FFU:采用离心风机,具有长寿命、低噪声、免维护、震动小、可无级变速等特性,风机质量可靠,工作寿命长,加上独特的风道设计,大大提高了风机的效率、降低了噪声!内部净化级别可达100-100K级;特别适用于车间内局部净化级别要求高的区域,如流水线作业区域。

5.内部采用净化室专用净化灯,不产尘也可采用普通照明灯。

下面展示一组洁净棚加工图|洁净棚制作图供大家参考、学习使用:

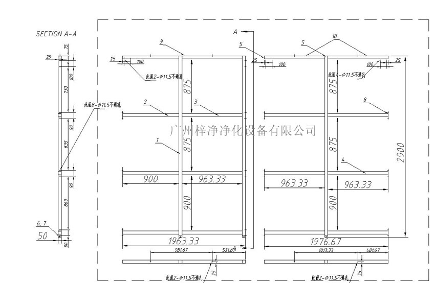
洁净棚加工图、洁净棚制作图总图
洁净棚加工图【总图】
洁净棚制作图总图左侧支架
洁净棚制作图【左侧支架】
洁净棚制作图右侧支架设计
洁净棚制作图总图【右侧支架】
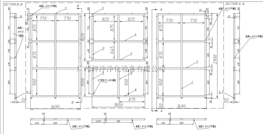
洁净棚制作图前架设计
洁净棚制作图【前架设计】
洁净棚制作图后架设计
洁净棚制作图【后架设计】
洁净棚制作图顶部设计
洁净棚制作图【顶部设计】

洁净棚加工图、洁净棚制作图看似简单,真的制作起来还是需要找专业厂家为您设计、定制、加工。

看完了洁净棚加工图|洁净棚制作图,推荐了解“梓净”更多洁净棚产品,点击下面链接直达产品:

百级洁净棚 ? ?千级洁净棚 ? ?万级洁净棚

上一篇:

下一篇:

相关文章

联系我们

手机:

13928758616

电话:

020-39961033

在线咨询:点击这里给我发消息

邮件:52047082@qq.com

 

QR code